
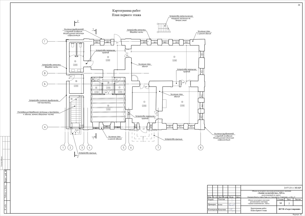
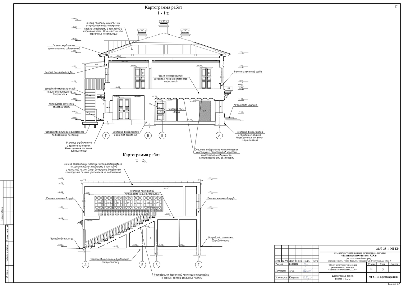
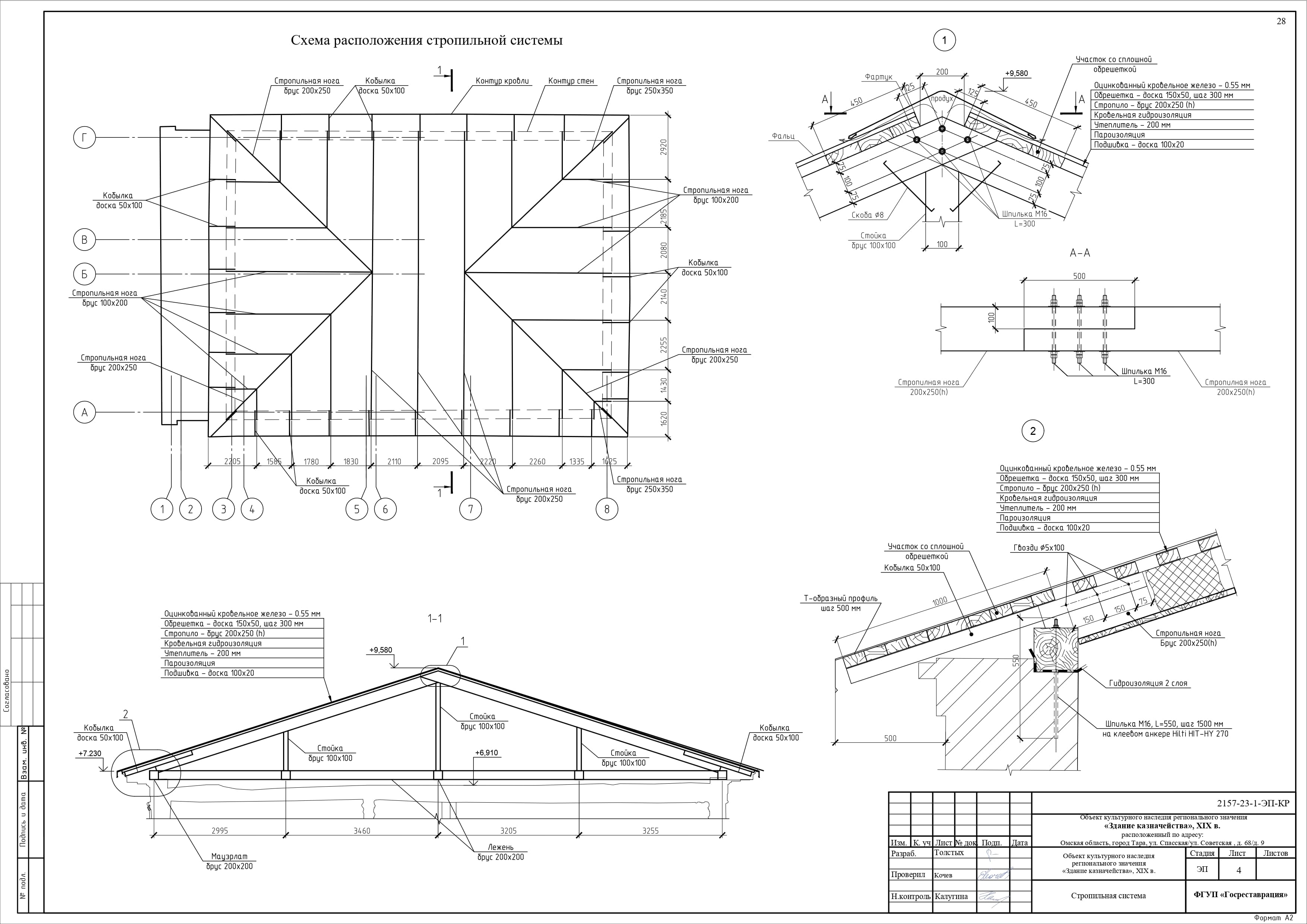
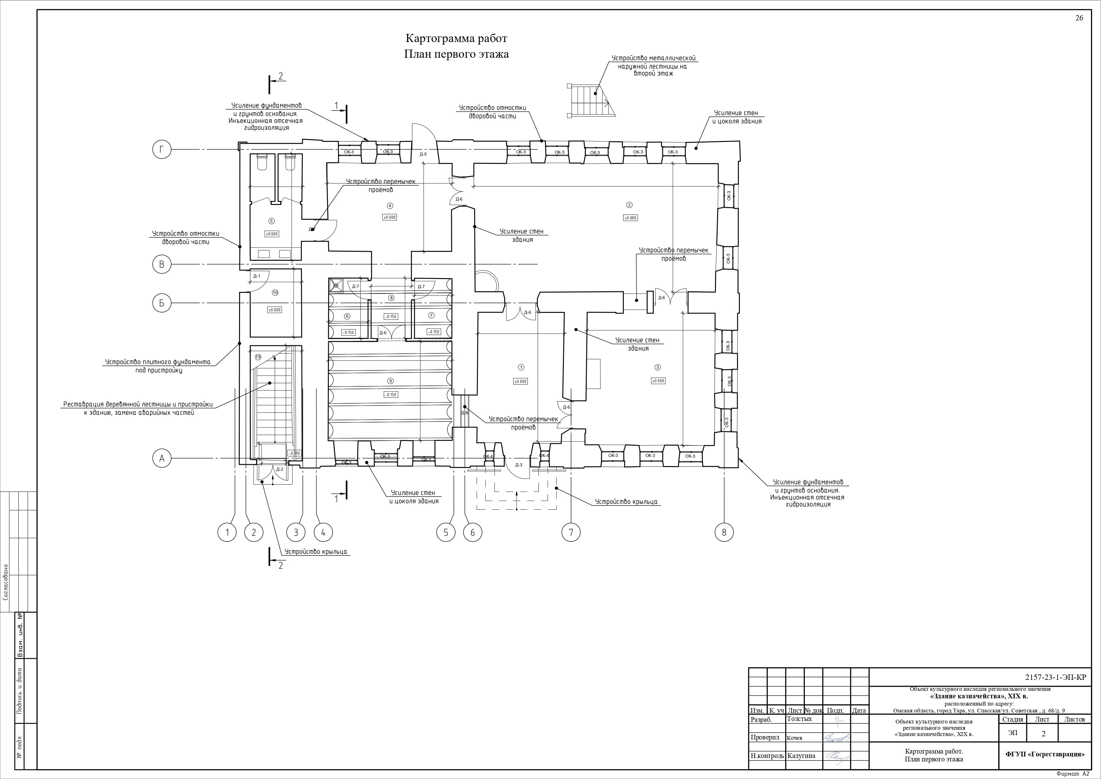
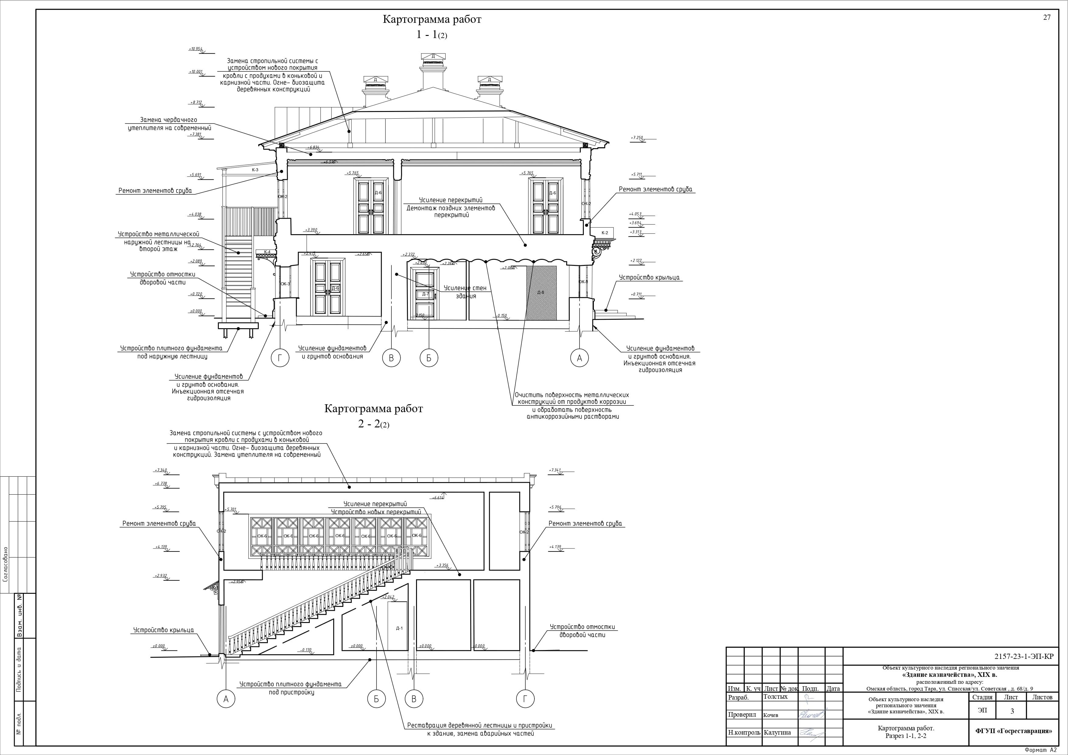
Историческое здание XIX века на углу улиц Советской (бывш. Никольской) и Спасской должно обрести второе дыхание благодаря масштабной реставрации, которая вернёт ему былое величие и подарит новое культурное предназначение. На площадках проводимых торгов опубликованы материалы предстоящей реставрации дома Пятковой: чертежи, планы и визуализации, демонстрирующие, каким здание должно стать после восстановления. Мы изучили эти рендеры и проектную документацию, чтобы подробно рассказать, что именно планируется сделать, какие элементы здания будут восстановлены, а какие изменятся при приспособлении дома к современному использованию. На пересечении старинных улиц Никольской и Спасской, в самом сердце купеческой Тары, стоит одно из самых узнаваемых и ценных зданий города – дом Анфисы Васильевны Пятковой, известный также как бывшее здание уездного казначейства. Этот особняк конца XIX века – редкий для северных районов Омской области пример городской усадебной архитектуры купеческого типа, сочетающей кирпичный нижний этаж и богато декорированный деревянный верх. Дом является не просто архитектурным памятником – он хранит в себе целый пласт городской истории, напоминая о временах, когда Тара была процветающим торговым центром Сибири. Сегодня, на фоне того, как большинство старинных зданий города постепенно разрушается, этот особняк остаётся редким свидетелем ушедшей купеческой эпохи и напоминанием о том, какой была Тара во времена своего расцвета. Казначейство. Почтовая карточка 1914 г. из наборов видов г. Тары 1911-1912 гг., издание магазина Я.В. Орлова (Фототипiя Шереръ, Набгольцъ и Ко., Москва). История здания уходит в последнюю четверть XIX века, когда известный тарский купец второй гильдии Василий Иванович Серебренников – чаеторговец, владелец лавок, складов и парохода «Ольга» – решил построить в городе представительный дом, достойный его статуса. Архитектура особняка подчинена типичным для того времени приёмам: прочный каменный первый этаж символизировал основательность и достаток, а деревянный второй – теплоту и уют сибирского дома. После смерти Серебренникова владение перешло к его дочери, купчихе Анфисе Васильевне Пятковой. Именно при ней особняк стал казённым домом – она сдала его в аренду уездному казначейству, благодаря чему здание получило новое функциональное назначение и вошло в историю под названием «Казначейство». С установлением советской власти в 1920 году дом был национализирован, и бывшей владелице его не вернули. С тех пор здание не раз меняло своих постояльцев: в разные годы здесь располагались отделение Государственного банка, финансовый отдел, детский сад №4, станция юных туристов, следственный комитет при прокуратуре, а позднее – местное отделение КПРФ. Дом Пятковой. Госбанк (Казначейство), 1961 г. Из архива А.А. Аскаленко. В начале XXI века дом оказался в аренде Тарской епархии. Несмотря на длительную и зачастую небрежную эксплуатацию, здание до сих пор сохраняет свой исторический облик и значительную часть оригинальных конструкций, хотя их состояние на сегодняшний день требует комплексной реставрации. Фасады дома Серебренникова–Пятковой отличаются выразительностью и гармонией. Нижний этаж выполнен из красного кирпича, стены имеют толщину до одного метра, в то время как верхний этаж построен из дерева и богато украшен резным декором. Такое сочетание камня и дерева характерно для Сибири конца XIX века, где прочность и тепло объединялись в едином архитектурном решении. Декоративное убранство фасадов поражает вниманием к деталям: резные наличники, филёнки, подоконные карнизы, профилированные пояса, пилястры и межэтажный карниз. Всё это создаёт торжественный, но уютный облик, напоминающий о времени расцвета купеческой Тары. Парадный вход первоначально располагался в центре северного фасада, обращённого к перекрёстку улиц Никольской и Спасской, однако в советские годы был перенесён во двор, а позднее заменён окном. Дом А.В. Пятковой (Казначейство), 1992 г. Автор Владимир Фёдорович Кудринский. Сканы слайдов из архива автора. Несколько лет назад на этом месте вновь появилась дверь – металлическая и современная, не имеющая ничего общего с историческим обликом дома. Этот случай вызвал общественный резонанс и стал ещё одним подтверждением того, насколько важно начать профессиональную реставрацию памятника. Дом А.В. Пятковой во время последнего ремонта, 18.09.2017 г. По инициативе одного из прихожан Спаской церкви на центральном фасаде здания появилась современная металлическая дверь. Прихожанин был оштрафован на небольшую сумму, дверь стоит до сих пор. Фото – А. Милевский. Современное техническое состояние здания оценивается как неудовлетворительное. Отсутствие гидроизоляции и нарушенный водоотвод привели к постоянному переувлажнению фундаментов и стен, появлению трещин и осадок. Кирпичная кладка цоколя частично разрушена, раствор выщелочен, а фрагменты штукатурки осыпались: Дом А.В. Пятковой (Казначейство), сентябрь 2025 года. Фото – А. Милевский. На деревянном втором этаже наблюдаются следы биопоражения, гнили и утраты декоративных элементов: Дом А.В. Пятковой (Казначейство), сентябрь 2025 года. Фото – А. Милевский. Перекрытия и балки местами ослаблены, в стропильной системе кровли имеются следы деформаций и поражения грибком. Кровельное покрытие из оцинкованной стали утратило герметичность, слуховые окна и дымники разрушены. Интерьеры, некогда украшенные лепниной, розетками и печами, сейчас находятся в запущенном состоянии. Почти полностью утрачены печные конструкции, потолочные орнаменты и резные детали. Не функционируют старые системы отопления и водоснабжения, отсутствуют современные инженерные коммуникации и противопожарные средства. Разработанный проект реставрации предусматривает поэтапное восстановление всех элементов здания с учётом его исторической и художественной ценности: В первую очередь будет проведено усиление фундаментов, расчистка цоколя и устройство новой отмостки для защиты от влаги: Кирпичная кладка нижнего этажа будет вычищена, укреплена и частично переложена с использованием материалов, идентичных оригинальным. На фасадах восстановят межэтажные тяги, пилястры, декоративные пояса, подоконные карнизы и филёнки. Второй этаж подвергнется полной реставрации: деревянную обшивку очистят, обработают антисептиками и антипиренами, заменят повреждённые элементы и окрасят в соответствии с исторической колористической схемой, выявленной в ходе исследований. Все поздние и несогласованные элементы – металлические двери, лестницы, козырьки – будут демонтированы: Кровля здания будет выполнена заново: стропильная система укрепится, а фальцевое железо заменят новым оцинкованным покрытием. Воссоздадут слуховые окна и дымники, появится организованный водосток, обеспечивающий надёжное отведение осадков: Особое внимание уделено восстановлению входных групп: деревянные двери будут изготовлены по архивным образцам, а над ними появятся изящные кованые козырьки. северный фасад 
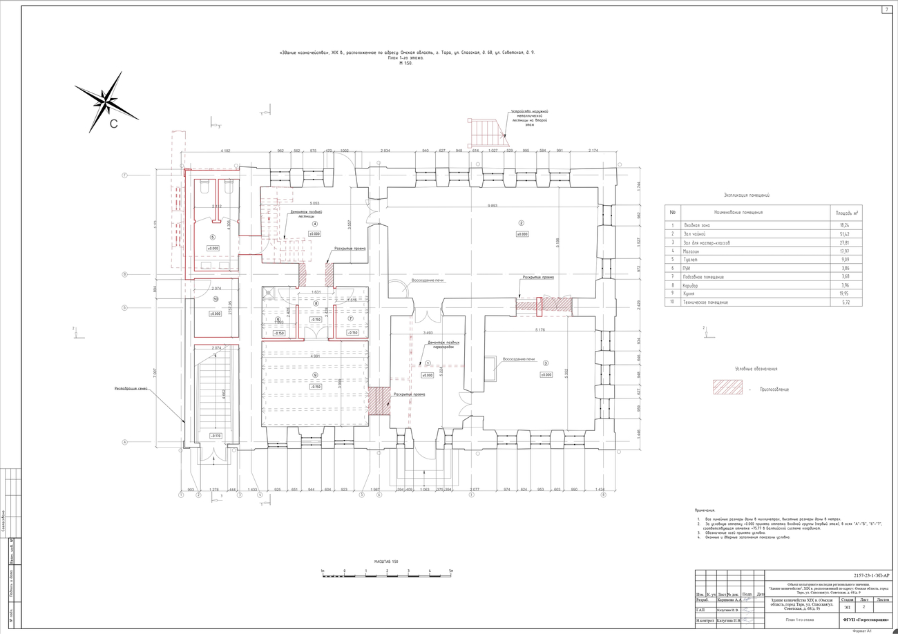
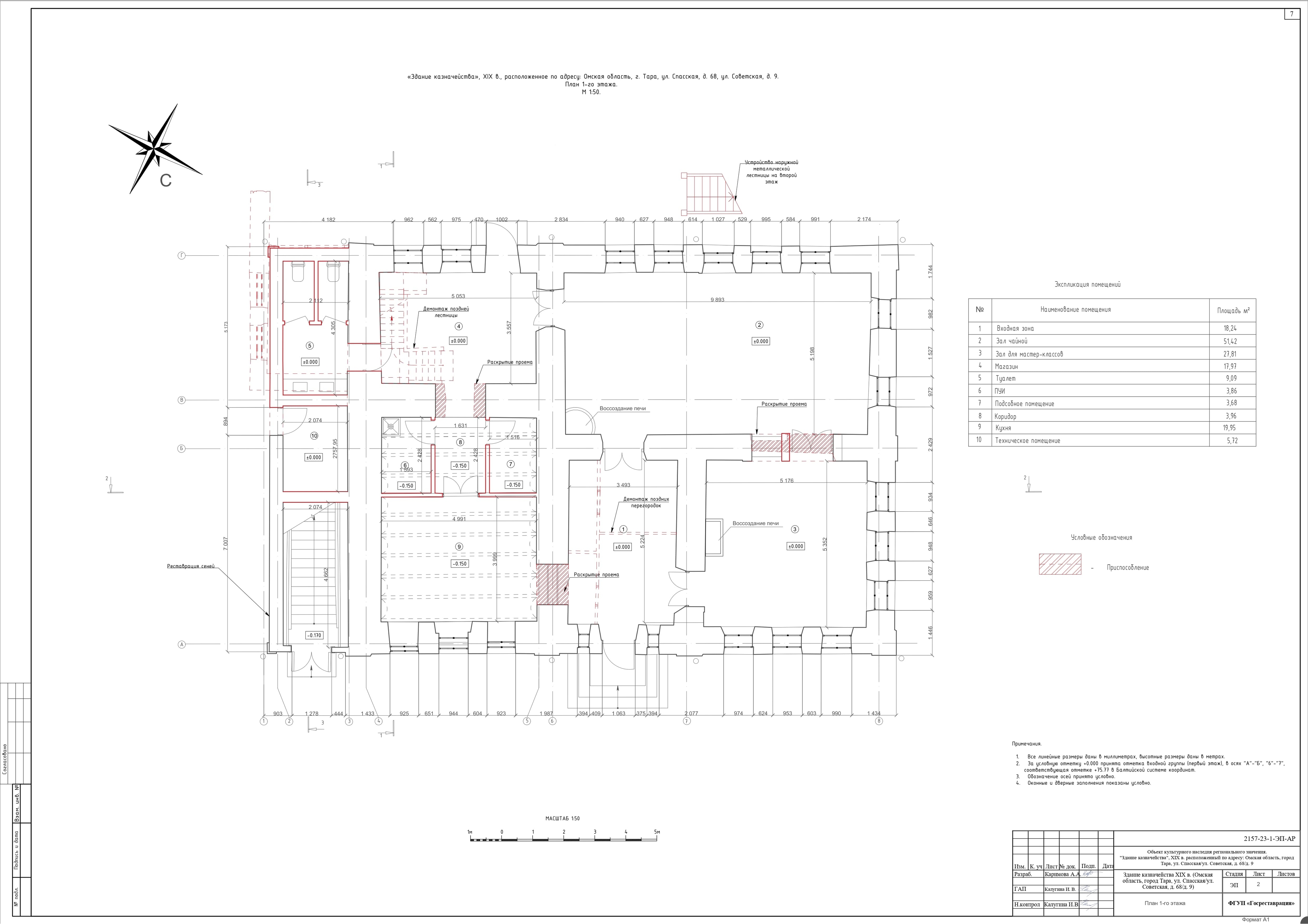
 южный фасад 
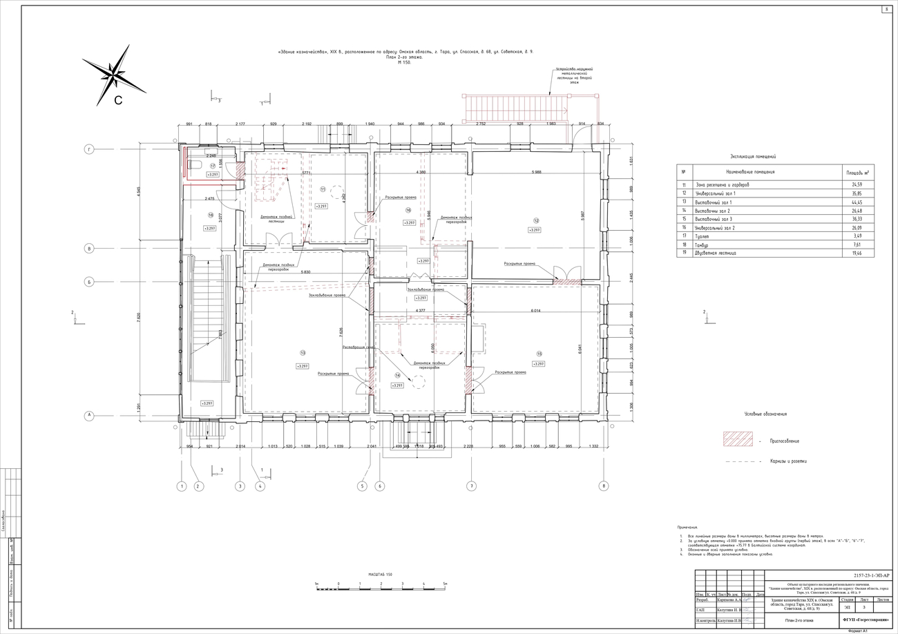
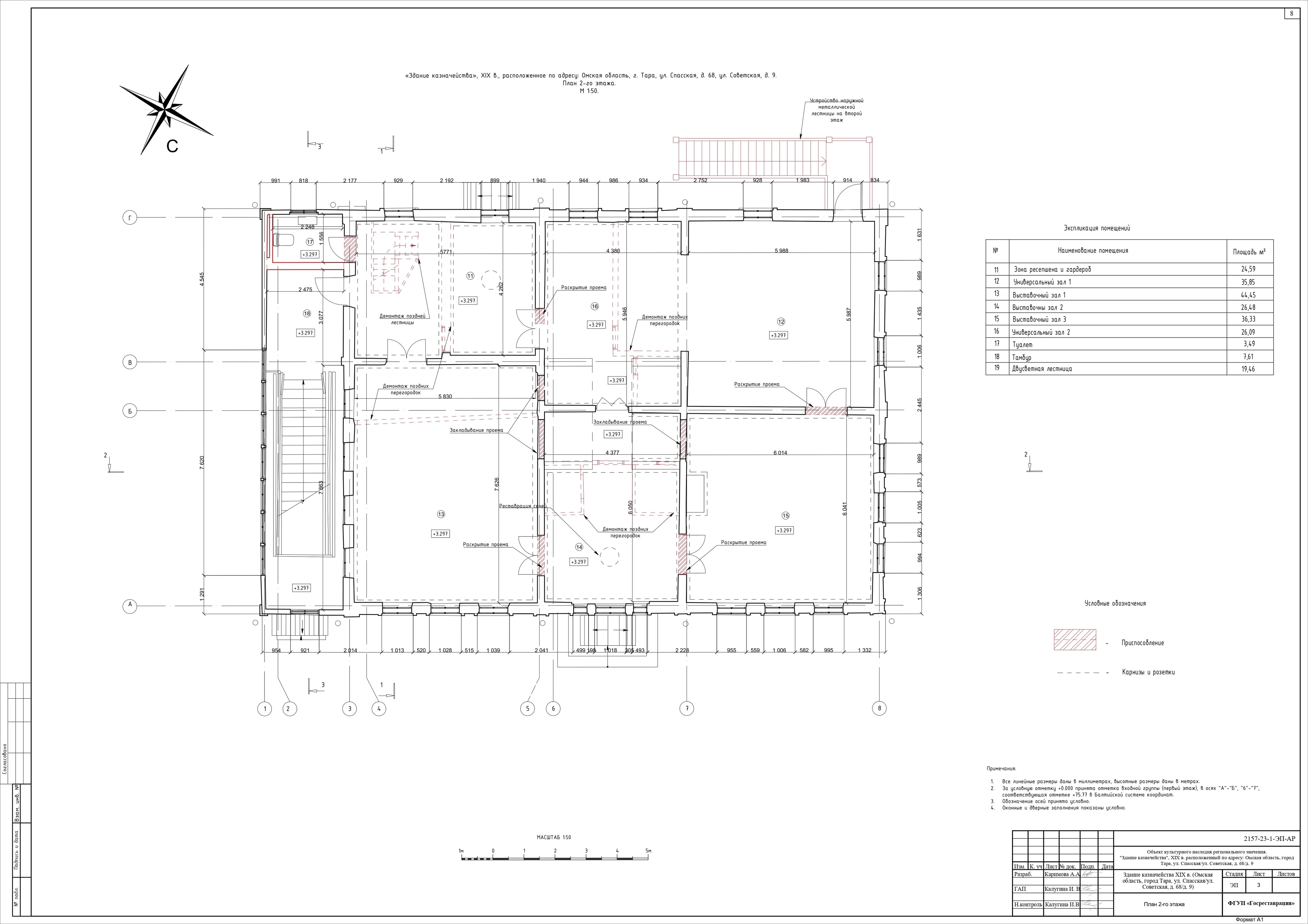
 Внутренние помещения ждёт глубокая реставрация: будут восстановлены тянутые потолочные карнизы, лепные розетки, межэтажные перекрытия и деревянные лестницы. В интерьере вновь появятся изразцовые печи – важная часть исторического убранства купеческих домов. Полы выполнят из дерева, а инженерные коммуникации полностью обновят, не нарушая целостности интерьера. В здании установят современные системы отопления, вентиляции, электроснабжения и водоотведения, а также автоматическую пожарную сигнализацию, систему оповещения, молниезащиту и заземление. Проект также предусматривает адаптацию здания к современному использованию. После завершения реставрации дом Анфисы Пятковой станет многофункциональным культурно-общественным пространством. На первом этаже разместятся чайная, зал для мастер-классов, небольшой магазин с отдельным входом и кухня, а также санитарные узлы и служебные помещения: Второй этаж отведут под выставочные и универсальные залы, ресепшен и гардероб. Здесь планируется проводить экспозиции, творческие встречи, лекции и камерные концерты: Таким образом, историческое здание получит не только новый облик, но и новую жизнь – оно вновь станет центром культурной жизни города, объединяющим прошлое и настоящее. И всё же в проекте есть то, о чём нельзя не сказать с сожалением. Реставрация не предусматривает восстановление ворот и ограждения усадьбы – тех самых, что когда-то формировали завершённый ансамбль купеческого дома. Фотографий оригинальных ворот, к сожалению, не сохранилось, но их вполне можно было бы воссоздать по историческим аналогам, используя традиционные приёмы кузнечного и плотницкого дела конца XIX века. Возвращение ограды с парадными въездными воротами позволило бы в полной мере воссоздать пространственную композицию усадьбы и вернуть дому Пятковой тот облик, который видели современники Серебренникова. Напомним, что финансирование проекта осуществляется за счёт федерального бюджета, начальная стоимость контракта составляет 154,25 миллиона рублей. Срок завершения всех работ установлен на декабрь 2028 года. Подрядчик, которому предстоит воплотить этот проект, должен обладать лицензией Министерства культуры России на проведение реставрационных работ и документально подтверждённым опытом восстановления памятников архитектуры. Первый конкурс был признан несостоявшимся из-за отсутствия конкуренции, однако Министерство планирует объявить повторные торги, чтобы не допустить задержки столь важного для региона проекта. Для Тары реализация этого проекта имеет особое значение – она станет первым масштабным шагом в деле возрождения исторического центра города и сохранения его уникального архитектурного наследия. В результате предстоящей реставрации дом Пятковой не просто восстановят, а возродят в его подлинной красоте и величии. Он вновь станет архитектурной доминантой перекрёстка старинных улиц, символом купеческого прошлого Тары и примером бережного отношения к наследию: Возвращение особняка к жизни позволит не только сохранить память о семье Серебренниковых и купеческой эпохе, но и вдохнуть в старинные стены новое содержание – живое, современное и творческое. Дом Пятковой станет не просто музеем, а пространством общения, вдохновения и культуры, где прошлое встречается с настоящим, а история оживает в каждом узоре резного наличника и в каждом восстановленном фрагменте фасада.  | 
Комментарии (0)  | |




































